(ra) 36 Millionen Euro für die Wohnraumförderung in Niederbayern im Jahr 2017. Wie die Regierung von Niederbayern am Freitag mitteilte, werden damit die Mittel gegenüber dem Vorjahr mehr als verdoppelt. Der absolute Schwerpunkt liegt mit 33 Millionen Euro auf der Mietwohnraumförderung.
Das Geld des Freistaats Bayern wird auch dieses Jahr durch weitere Bundesmittel und durch Eigenmittel der Bayerischen Landesbodenkreditanstalt im Rahmen des Wohnungspakts Bayern aufgestockt. „Das ist eine wichtige Offensive für bezahlbaren Wohnraum. Mit so einem gut gefüllten Fördertopf können in Niederbayern viele neue Wohnungen entstehen. Genügend Wohnraum und vor allem auch bezahlbar, das ist für die Stabilität der Gesellschaft unabdingbar“, so Regierungspräsident Rainer Haselbeck.
Die Aufstockung der Fördermittel trifft auf eine steigende Nachfrage. Baugenossenschaften, Wohnungsunternehmen und auch private Investoren zeigen großes Interesse am Bau von geförderten Mietwohnungen für Menschen mit geringerem Einkommen. Viele niederbayerische Kommunen wollen zudem mit dem „Kommunalen Wohnraumförderprogramm“ zahlreiche Projekte auf den Weg bringen.
Bis vor wenigen Jahren lag der Schwerpunkt der Wohnraumförderung in Niederbayern beim Bau oder Erwerb von Eigenwohnraum. Auch wenn sich die Nachfrage in Richtung der Mietwohnraumförderung geändert hat, wird die staatliche Unterstützung heuer wieder vielen Familien beim Bau oder Erwerb ihrer eigenen vier Wände helfen. Dafür sind weitere drei Millionen Euro eingeplant.

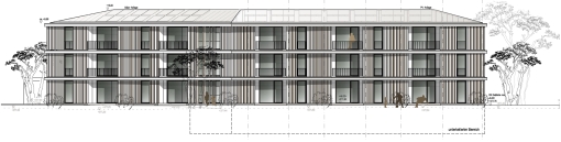
Ein gelungenes Beispiel aus dem „Kommunalen Wohnraumförderprogramm“ wird gerade im Markt Essenbach, Ortsteil Ohu, geplant. Dort errichtet der Markt Essenbach selbst eine Wohnanlage in Massivholzbauweise mit 15 Wohnungen für Mieter mit geringerem Einkommen. Das Grundstück liegt am Rande eines Wohngebiets, zwischen Jahnweg und Mühlbach. Geplant sind zwei Einzimmerwohnungen, sieben Zweizimmerwohnungen, vier Dreizimmerwohnungen und zwei Vierzimmerwohnungen mit 39 bis 84 m2 Wohnfläche. Das leicht abgewinkelte Gebäude wird dreigeschossig, soll ein flach geneigtes Dach erhalten und ein Teilbereich wird unterkellert. Alle Wohnungen haben nach Süden hin eine Loggia und sind über Laubengänge im Norden miteinander verbunden. Außerdem sind alle Wohnungen mit einem Aufzug barrierefrei erreichbar.
Die Gesamtkosten belaufen sich auf ca. 2,87 Millionen Euro. Die Regierung von Niederbayern hat für die 15 Wohneinheiten einen Zuschuss von 843.600 Euro bewilligt.
Für Bauherren und Käufer gilt grundsätzlich: Alle Fördermittel müssen vor dem Baubeginn bzw. Kaufvertragsabschluss beantragt und bewilligt sein. Ansprechpartner für Förderungen von Mietwohnungen in Mehrfamilienhäusern ist die Regierung von Niederbayern, Tel.: 0871-808-01. Informationen über Zuschüsse fürs Eigenheim geben die Landratsämter und die Kreisfreien Städte oder sind im Internet zu finden unter http://www.wohnen.bayern.de
